
Inspiration
Project Union

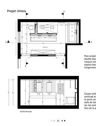
Create an inspired space...
Clients:
Family, living in a detached house built in 1985 and renovated 10 years ago.
Current layout of their en-suite bathroom and dressing area no longer suits them. Due to their differing schedules, noise, lighting, and movement between the bathroom and dressing area are disruptive to one another.
They find the existing bathroom too small and would like to enlarge it. However, they still want to include storage functionality in the new space.
They also want to maintain visual consistency with the other bathrooms in the house, which follow a white and grey color palette.
The house is located near the edge of a forest and overall has a blend of modern and classic styles. The living room features black and white furniture, and all rooms share uniform oak wood flooring.
​
The objective is to create a functional, harmonious, and contemporary bathroom that replies to clients needs
​
Concept and Inspiration:
I propose a sophisticated and minimalist design that seamlessly integrates black, white, and wood tones to instill warmth and authenticity, while ensuring cohesion with the overall aesthetic of the home. The flooring will consist of high-quality wood-effect tiles, paired with black enameled metal sinks and a bathtub for a modern touch. A generously sized white shower will introduce brightness and contrast to the space. To achieve visual balance in the long, narrow area, the walls will be painted black, creating a sleek and contemporary ambiance.






